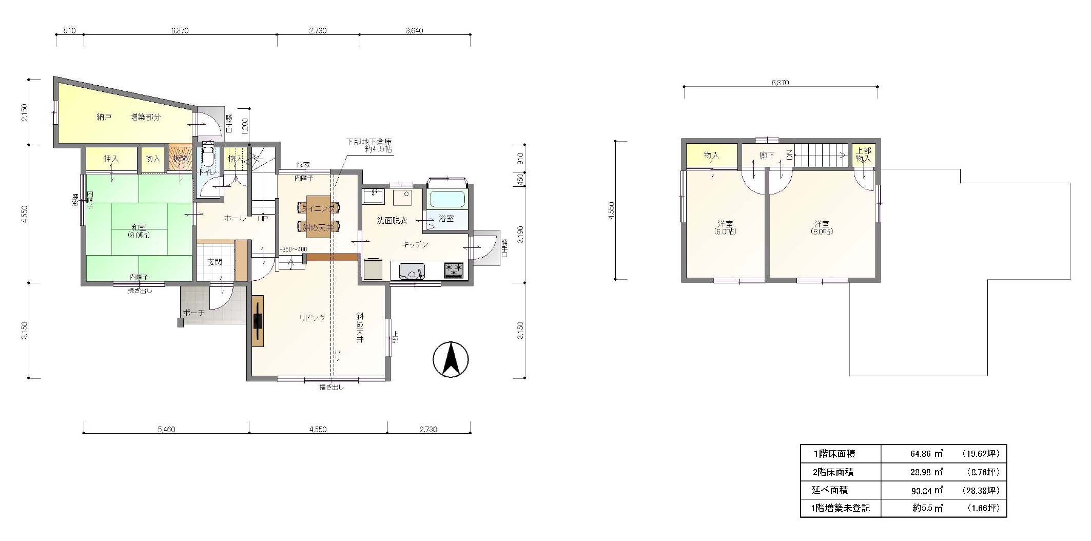
一戸建 物件一覧 トップページ > 一戸建 物件一覧 詳しく見る > 奈良市押熊町 3,750万円 詳しく見る > 奈良市松陽台2丁目 2,630万円 詳しく見る > 相楽郡精華町桜が丘4丁目 1,430万円